3 Bedroom
1 Bathroom
700 - 1,100 ft2
Bungalow
Central Air Conditioning
Forced Air
Landscaped
$640,000
Spacious and beautifully renovated, this 3-bedroom, 1-bath bungalow offers ~890 sq. ft. of well-designed living on a private, tree-lined lot in Prince Edward County, just minutes from Picton Main Street. The home blends modern upgrades with warm finishes, featuring wide-plank Amish-cut pine floors, an open-concept layout, and large south-facing windows that fill the space with natural light and tranquil views. The updated kitchen includes newer appliances (stove, dishwasher, in-suite washer/dryer), along with refreshed cabinetry, counters, and fixtures. Key upgrades include updated plumbing, newer windows and doors, central A/C, and a propane/natural gas furnace for year-round comfort. Set on a quarter of an acre, the fully fenced backyard offers privacy with no rear neighbours, a 15 x 20 ft vegetable garden, and a 16-20 ft wide deck-perfect for entertaining or relaxing. Outbuildings include a 20 x 30 ft shop/garage with 10 ft ceilings, hydro, and partial insulation, plus a 10 x 8 ft garden shed and 6 x 10 ft storage shed. A detached flex building is ideal for a studio, office, workshop, or small business. Driveway parking for up to 3 vehicles. 4000 liter backup water cistern. Walk to Main Street, the Millennium Trail, shops, restaurants, and wineries. Known for its arts scene, dining, beaches, and vineyards, the County is a sought-after year-round destination. Currently rented to an excellent long-term tenant on a renewed lease from March 5, 2026 to March 4, 2027. Room sizes approximate. (id:38042)
83 County Rd 1, Prince Edward County Property Overview
|
MLS® Number
|
X13056038 |
|
Property Type
|
Single Family |
|
Community Name
|
Hallowell Ward |
|
Amenities Near By
|
Park, Schools, Public Transit, Hospital |
|
Equipment Type
|
None |
|
Features
|
Level Lot, Wooded Area, Irregular Lot Size, Flat Site, Lighting, Dry, Level, Paved Yard, Carpet Free |
|
Parking Space Total
|
4 |
|
Rental Equipment Type
|
None |
|
Structure
|
Deck, Shed |
83 County Rd 1, Prince Edward County Building Features
|
Bathroom Total
|
1 |
|
Bedrooms Above Ground
|
3 |
|
Bedrooms Total
|
3 |
|
Age
|
51 To 99 Years |
|
Appliances
|
Water Heater, Dishwasher, Dryer, Oven, Stove, Washer, Refrigerator |
|
Architectural Style
|
Bungalow |
|
Basement Type
|
Crawl Space |
|
Construction Style Attachment
|
Detached |
|
Cooling Type
|
Central Air Conditioning |
|
Exterior Finish
|
Wood |
|
Fire Protection
|
Smoke Detectors |
|
Foundation Type
|
Block |
|
Heating Fuel
|
Propane |
|
Heating Type
|
Forced Air |
|
Stories Total
|
1 |
|
Size Interior
|
700 - 1,100 Ft2 |
|
Type
|
House |
|
Utility Water
|
Cistern, Drilled Well |
83 County Rd 1, Prince Edward County Parking
83 County Rd 1, Prince Edward County Land Details
|
Acreage
|
No |
|
Land Amenities
|
Park, Schools, Public Transit, Hospital |
|
Landscape Features
|
Landscaped |
|
Sewer
|
Septic System |
|
Size Depth
|
150 Ft |
|
Size Frontage
|
60 Ft |
|
Size Irregular
|
60 X 150 Ft |
|
Size Total Text
|
60 X 150 Ft|under 1/2 Acre |
|
Zoning Description
|
Rr1 |
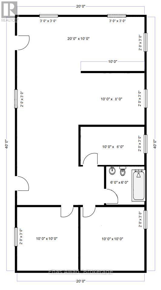
83 County Rd 1, Prince Edward County Rooms
| Floor |
Room Type |
Length |
Width |
Dimensions |
|
Main Level |
Kitchen |
6.1 m |
3 m |
6.1 m x 3 m |
|
Main Level |
Dining Room |
3 m |
2.44 m |
3 m x 2.44 m |
|
Main Level |
Living Room |
3 m |
2.44 m |
3 m x 2.44 m |
|
Main Level |
Primary Bedroom |
3 m |
3 m |
3 m x 3 m |
|
Main Level |
Bedroom 2 |
3 m |
3 m |
3 m x 3 m |
|
Main Level |
Bedroom 3 |
3 m |
1.83 m |
3 m x 1.83 m |
|
Main Level |
Bathroom |
1.83 m |
1.83 m |
1.83 m x 1.83 m |
|
Main Level |
Laundry Room |
|
|
Measurements not available |
83 County Rd 1, Prince Edward County Utilities
|
Cable
|
Available |
|
Electricity
|
Installed |