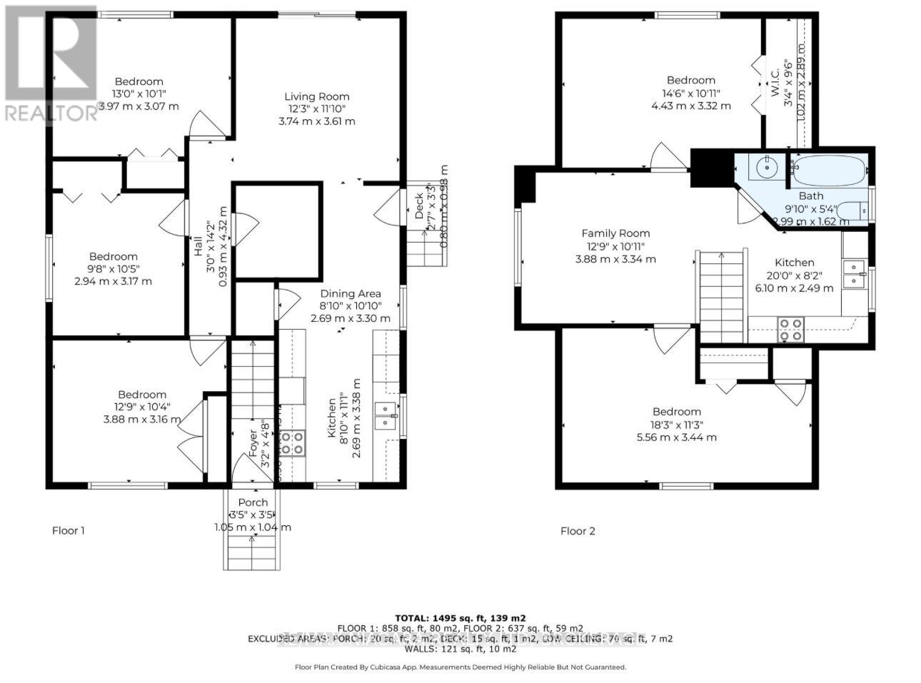
5 Bedroom
2 Bathroom
1,100 - 1,500 ft2
None
Forced Air, Not Known
$539,900
Welcome to 42 Vine Street, an excellent opportunity to secure a duplex in a transitioning area of St. Catharines poised for future growth. Located near the former hospital site, this property is ideally positioned to benefit from the area's anticipated redevelopment and long-term revitalization.As the surrounding neighbourhood evolves, this location presents a compelling case for investors looking to get in ahead of continued change. With increasing focus on land use, redevelopment, and housing demand, this pocket of the city is expected to see renewed interest and upward pressure on property values over time.The property itself offers two self-contained units with existing rental income in place. This is a smart buy-and-hold opportunity for investors who understand the impact of redevelopment and are looking to position themselves early. The combination of an improving location, steady rental demand, and the ability to add value makes 42 Vine Street a strategic addition to any portfolio.Secure your investment in an area with a promising future, 42 Vine Street offers both immediate income and long-term potential. (id:38042)
42 Vine Street, St. Catharines Property Overview
|
MLS® Number
|
X12994558 |
|
Property Type
|
Multi-family |
|
Community Name
|
450 - E. Chester |
|
Features
|
Paved Yard |
|
Parking Space Total
|
2 |
42 Vine Street, St. Catharines Building Features
|
Bathroom Total
|
2 |
|
Bedrooms Above Ground
|
5 |
|
Bedrooms Total
|
5 |
|
Age
|
51 To 99 Years |
|
Appliances
|
Water Meter |
|
Basement Development
|
Unfinished |
|
Basement Type
|
Partial (unfinished) |
|
Cooling Type
|
None |
|
Exterior Finish
|
Vinyl Siding |
|
Foundation Type
|
Poured Concrete, Stone |
|
Heating Fuel
|
Electric, Natural Gas |
|
Heating Type
|
Forced Air, Not Known |
|
Stories Total
|
2 |
|
Size Interior
|
1,100 - 1,500 Ft2 |
|
Type
|
Duplex |
|
Utility Water
|
Municipal Water |
42 Vine Street, St. Catharines Parking
42 Vine Street, St. Catharines Land Details
|
Acreage
|
No |
|
Sewer
|
Sanitary Sewer |
|
Size Depth
|
128 Ft |
|
Size Frontage
|
36 Ft |
|
Size Irregular
|
36 X 128 Ft |
|
Size Total Text
|
36 X 128 Ft |
|
Zoning Description
|
R2 |