LOADING

224-226 Courtwright Street Fort Erie, Ontario L2A 2R8

Speak to an Agent About 224-226 Courtwright Street, Fort Erie

$199,999

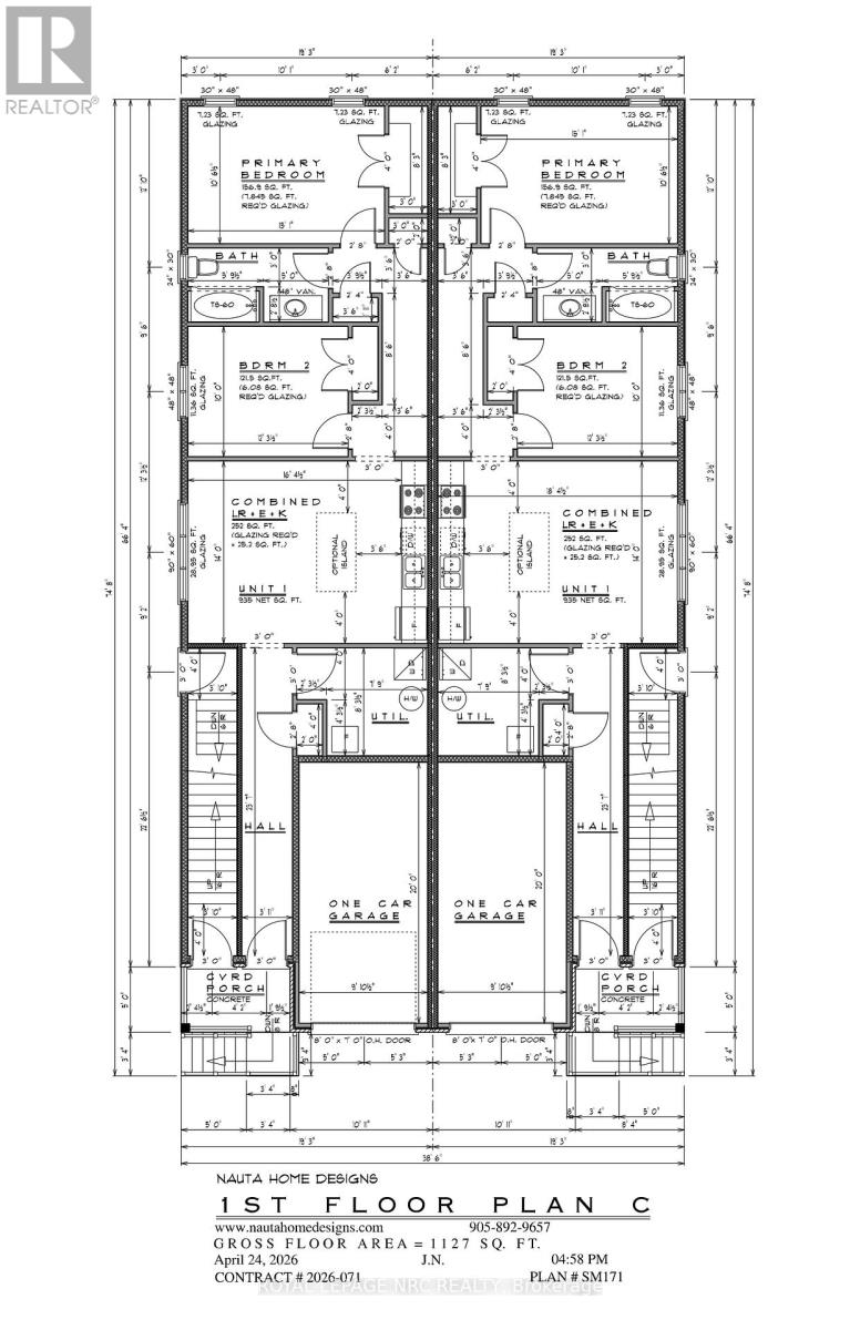
Builders & Investors. Construction Plans are Complete and Approved from Town of Fort Erie Planning and Development. Zoning Compliance Letter for Semi-Detached Homes with 3 Self-Contained Two Bedroom Units for each Semi, with Separate Hydro, and Separate Gas Meter for each Self Contained Unit Approved. R3 Zoning Permit many uses. Gas, Water, Hydro at the Road. Great Location, 1.9km to QEW, 3.6km to Peace Bridge - USA Border, close Schools, Downtown, Beaches, Golfing, Shopping, Restaurants, etc. Niagara river steps away at the end of Courtwright. Currently a Garage on the Property. Drive by. (id:38042)

224-226 Courtwright Street, Fort Erie Property Overview

MLS® Number X13056220
Property Type Vacant Land
Community Name 332 - Central

224-226 Courtwright Street, Fort Erie Building Features

224-226 Courtwright Street, Fort Erie Parking

Detached Garage
Garage

224-226 Courtwright Street, Fort Erie Land Details

Acreage No
Size Depth 138 Ft
Size Frontage 50 Ft
Size Irregular 50 X 138 Ft
Size Total Text 50 X 138 Ft
Zoning Description R3

224-226 Courtwright Street, Fort Erie Utilities

Cable Available
Electricity Available
Sewer Available