LOADING

2147 King Street E Hamilton, Ontario L8K 1W5

Speak to an Agent About 2147 King Street E, Hamilton
1 Bathroom 491 ft2
Fully Air Conditioned Forced Air, Other

$59,000

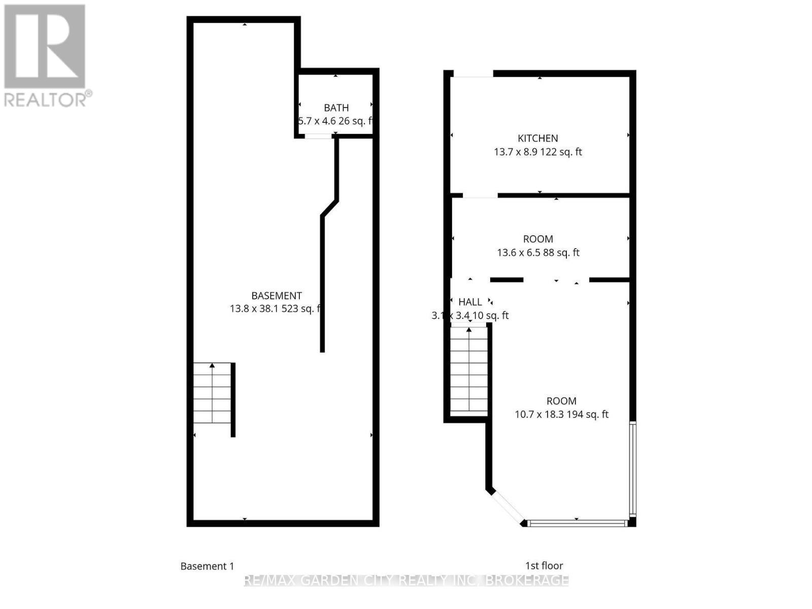
Prime East Hamilton commercial turn key restaurant setup. C2 zoning suitable for take out, bakery, variety/convenience store, etc. Approx 500 square feet ground level plus a full basement. High exposure & pedestrian foot traffic. All existing fixtures & chattels included. 1 washroom in the basement. (id:38042)

2147 King Street E, Hamilton Business Profile

Business Type Restaurant
Business Sub Type Fast foods

2147 King Street E, Hamilton Property Overview

MLS® Number X12860798
Property Type Business
Community Name Glenview

2147 King Street E, Hamilton Building Features

Bathroom Total 1
Cooling Type Fully Air Conditioned
Heating Fuel Natural Gas
Heating Type Forced Air, Other
Size Interior 491 Ft2
Utility Water Municipal Water

2147 King Street E, Hamilton Land Details

Acreage No
Size Depth 100 Ft ,1 In
Size Frontage 49 Ft
Size Irregular 49 X 100.16 Ft
Size Total Text 49 X 100.16 Ft
Zoning Description C2